Precision Estimating for High-Rise Construction Projects

High-rise construction isn’t just another job — it’s a different scale altogether. When you’re talking about towers with 20 or 30 levels, every cubic metre of concrete and every length of pipe matters.
That’s why contractors and developers trust Construction Trades Estimating (part of Intec Developments Pty Ltd). We’ve worked on large-scale projects across Sydney, Melbourne, and Brisbane, providing estimates that cover everything from concrete and MEP to masonry and rendering.
Using Cubit software, we break down each trade into clear, accurate quantities that make tendering and project planning far less stressful. Our clients include Tier 2 and Tier 3 contractors as well as specialist subcontractors who know how costly even a small mistake can be at this level.
If you’re preparing to bid on a multi-storey project, let us handle the numbers while you focus on delivering the build.
Get in touch at quantityestimating@gmail.com or visit our instagram page @tradesestimating to learn more.
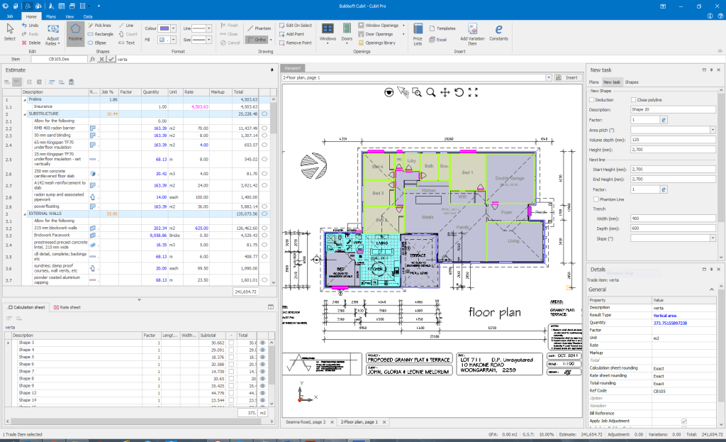
The Benefits of Using Cubit Estimating Software for Australian Contractors

Estimating software isn’t all created equal. Over the years, Cubit has become the go-to choice for many Australian contractors, and for good reason — it’s fast, flexible, and incredibly precise.
Our team at Construction Trades Estimating (Intec Developments Pty Ltd) relies on Cubit every day to measure projects across Sydney, Melbourne, Brisbane, and beyond. Whether it’s concrete, MEP, masonry, or rendering, Cubit lets us produce clear and reliable take-offs quickly.
What does that mean for contractors? Fewer errors, smoother tenders, and estimates you can trust when it comes to pricing.
Combine that with our team’s experience across multiple trades, and you get the kind of accuracy that leads to better projects and stronger margins.
Want to see how Cubit-powered estimating could work on your next job? Drop us a line at quantityestimating@gmail.com — we’d be happy to walk you through it.
Why Brisbane Contractors Choose Outsourced Estimating

Walk around Brisbane right now and you’ll see cranes everywhere — the city is buzzing with new builds, from high-end apartments to major commercial projects. With that growth comes tougher competition, and one thing that often decides who wins a job is the quality of the estimate.
That’s why so many Brisbane contractors are now turning to us.
At Construction Trades Estimating (Intec Developments Pty Ltd), we provide detailed take-offs using Cubit software, covering concrete, masonry, rendering, and MEP. Our estimates are designed to reduce mistakes, help you control costs, and keep tenders moving on time.
For builders, outsourcing means less overhead and more time to focus on scaling their business. And with the volume of projects in Brisbane, having accurate numbers can be the difference between winning and missing out.
If you’ve got a project coming up, send your drawings to quantityestimating@gmail.com or visit quantity-estimating.com.au — we’ll handle the detail so you can stay ahead of the pack.
How Melbourne Builders Can Save Time with Professional Estimating

Melbourne’s building scene moves fast. Between tight deadlines, competitive tenders, and client expectations, contractors are under constant pressure. The last thing most builders want is to be buried in drawings after hours, double-checking measurements.
That’s where outsourcing makes a real difference.
Our team at Construction Trades Estimating (Intec Developments Pty Ltd) helps Melbourne builders take the guesswork out of tendering. Using Cubit software, we prepare reliable take-offs for masonry, rendering, concrete, and MEP trades. Every report is structured clearly so you can hit “submit” with confidence.
Instead of spending late nights with the ruler and calculator, let us handle the numbers while you stay focused on your projects and client relationships.
You can see more of our work on Instagram @tradesestimating, or simply email us at quantityestimating@gmail.com to get started.
