0455 025 520
quantityestimating@gmail.com, tradesestimating@outlook.com
Construction Trades Estimating
Dependable, Efficient and Affordable
Call back
Home
About us
Blog
Quantity Estimating
Projects
Contact us
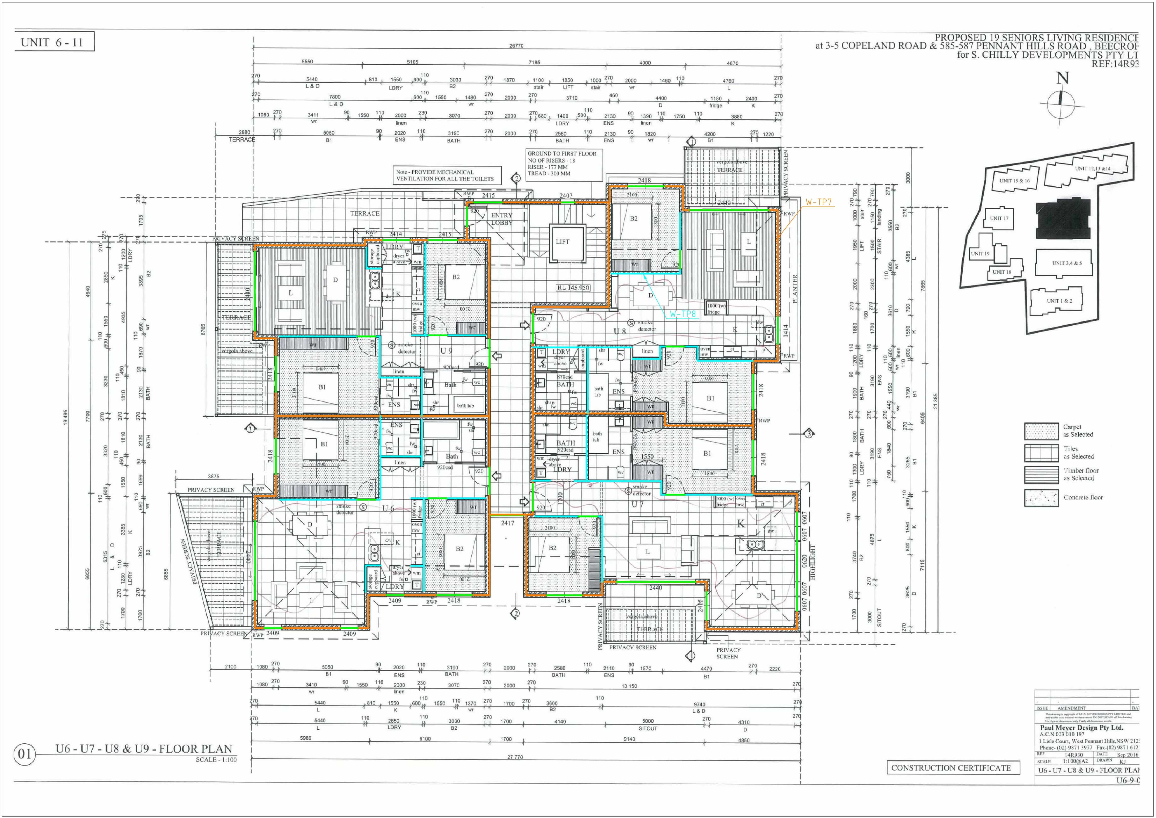
3-5 Copeland Road Beecroft Unit_1_19 MARK UP-3
×
Call back
By submitting this form, you agree to our
Privacy Policy